関連記事

今回ご紹介するのはピアース千代田淡路町です!
売主はモリモト、施工は森本組。
アドレスは東京都千代田区神田美土代町、淡路町駅、新御茶ノ水駅、小川町駅徒歩1分、大手町駅徒歩9分、地上13階建て、総戸数は71戸。
価格は未定、専有面積は25.03㎡~54.78㎡、竣工は平成29年2月末日。
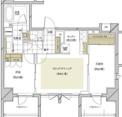
一番広い間取りでも54.78㎡となります。↓54.78㎡の間取りです。

2、3ヶ月前に現地を見てきたのですが、かなり囲まれ感のある立地条件でした。3駅から徒歩1分の場所ですからそれは仕方のないこととして割り切れるのと、モリモトらしい窓面が多い間取りが多いですから実際の住戸からは圧迫感をあまり感じずに生活できるのではないでしょうか。

淡路町と言えばプラウド千代田淡路町がおおよそ@400で早期完売した記憶が新しいですが、当然それを超える価格設定になるでしょう。価格発表は気になるところですが、モリモトさんも価格を出すのが遅い方なのでしばらくは様子見になりそうです。

千代田区3駅徒歩1分、大手町駅徒歩9分と資産価値の高い立地条件ですから多少高くても売れるでしょう。ぜひともこれでもかっ!!という高級仕様できてほしいものです。
記事内画像出典:ピアース千代田淡路町公式HP
こちらもご覧ください↓
マンションマニアの活動日記
アーバンガールbyマンションマニア
Twitterもフォローお願いします!!
[価格表あり] モデルルーム訪問 その111 クラッシィハウス神田美土代町
ディアナコート本郷の丘 事前案内会へ参加!!
今回ご紹介するのはピアース千代田淡路町です!
売主はモリモト、施工は森本組。
アドレスは東京都千代田区神田美土代町、淡路町駅、新御茶ノ水駅、小川町駅徒歩1分、大手町駅徒歩9分、地上13階建て、総戸数は71戸。
価格は未定、専有面積は25.03㎡~54.78㎡、竣工は平成29年2月末日。
一番広い間取りでも54.78㎡となります。↓54.78㎡の間取りです。

2、3ヶ月前に現地を見てきたのですが、かなり囲まれ感のある立地条件でした。3駅から徒歩1分の場所ですからそれは仕方のないこととして割り切れるのと、モリモトらしい窓面が多い間取りが多いですから実際の住戸からは圧迫感をあまり感じずに生活できるのではないでしょうか。

淡路町と言えばプラウド千代田淡路町がおおよそ@400で早期完売した記憶が新しいですが、当然それを超える価格設定になるでしょう。価格発表は気になるところですが、モリモトさんも価格を出すのが遅い方なのでしばらくは様子見になりそうです。

千代田区3駅徒歩1分、大手町駅徒歩9分と資産価値の高い立地条件ですから多少高くても売れるでしょう。ぜひともこれでもかっ!!という高級仕様できてほしいものです。
記事内画像出典:ピアース千代田淡路町公式HP
こちらもご覧ください↓
マンションマニアの活動日記
アーバンガールbyマンションマニア
Twitterもフォローお願いします!!
