今回は国分寺駅を最寄りとする4物件についてです!
国分寺駅はJR中央線の通勤特快、中央特快の停車駅で、通勤特快の場合は次の駅が新宿です。日中の時間帯ですと新宿駅まではたったの19分。ただ、新宿駅へ19分圏内の駅は多数あるわけで、その中ではけしてお安くない国分寺エリアですから基本的には地元需要となります。
しかしながら駅近くで4物件が供給中ともなると地元需要だけではなく地縁のない方も呼びこまなければなりません。そもそも国分寺駅の魅力とはどうのような部分なのか?駅ビルがあり、交通利便性が良く、公園、庭園があり便利なんだけども自然も豊かであるということはわかりやすい部分です。その他に注目したいのは吉祥寺と立川の間に位置していること、私立の中学高校、大学のキャンパスがあるため若者も多いことでしょうか。
そしてもう一つ注目してほしいのは国分寺駅最寄りで供給されているマンションのスペックが高いことです。比較的お財布に余裕がある地元の方の需要がメインですから「安くて普通のマンション」よりも「高くて高スペックなマンション」のほうが売れたりします。大手志向の方が多いという理由か現在供給中のマンション、すべて超大手が売主です。
それでは4つのマンションを紹介していきたいと思います!
まずはシティタワー国分寺ザツインです!売主は住友不動産です。

駅直結と文句なしの立地です。現在は第二期の販売前のため価格は未定ですが、参考までにウエストの第一期販売概要は7480万円~13880万円、56.99㎡~80.03㎡、販売戸数は70戸でした。
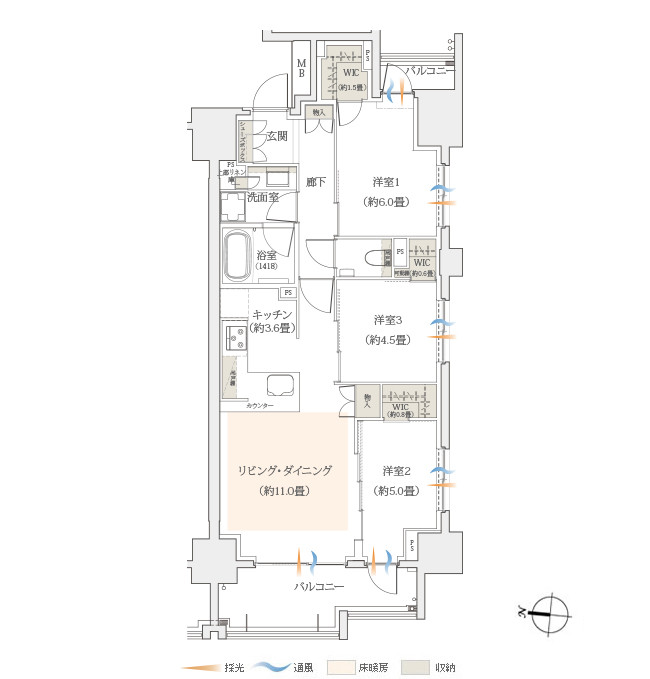
つづいてはザ・パークハウス国分寺プレイスです!売主は三菱地所レジデンスです。
駅徒歩3分という近さでありながら線路から離れるため静かな環境です。

国分寺レジデンスギャラリーに立ち寄り販売状況を確認したところ残り住戸は1戸とのこと。
9階 70㎡ 6598万円 坪単価311万円

竣工済みマンションですから超低金利で決め打ちできるのも魅力的です!
つづいてはザ・パークハウス国分寺緑邸です!こちらも売主は三菱地所レジデンスです。
こちらは駅徒歩4分、プレイスと違い通りを渡る必要があるため単純に駅までの利便性ではプレイスのほうが勝ります。しかしこちらの強みは物件名にもあるとおり緑豊かな場所に位置することです。

言葉で説明するよりも公式HPにある動画をぜひご覧ください。

駅近でこれだけの緑を背負っている物件はなかなかありません。こちらも販売状況を確認したところ現在は5戸を先着順で販売中とのこと。販売概要は6,498万円~7,798万円、70.31m2~77.03m2です。価格表を確認したところ未供給戸数を合わせて約30戸のようです。竣工が平成28年10月中旬ですから順調でしょうか。あとは実物を見せれるようになってからのほうが売りやすいのではないでしょうか。マンマニも背中側に背負う緑地を実際の共用廊下から見てみたいです!
最後にプラウド国分寺です!売主は野村不動産です。
駅徒歩5分ですが先ほどまで紹介したマンションと違い駅から現地までが緩い下り坂となります。

同マンションの特徴は杜を活かしたランドスケープ!7番の場所は一般の方も入れますがその先1番付近は住民専用の杜となります。それとは別に提供公園も設けますから全体を敷地として見るとゆとりがあることがわかります。

モデルルームがお休みだったため販売状況はわからず。公式HPを確認すると販売価格が未定のため参考までに第二期二次の販売概要は、6298万円~7599万円、71.13㎡~76.83㎡、販売戸数10戸でした。
最後に各現地の写真を掲載いたします!
まずはザ・パークハウス国分寺プレイス!スタイリッシュな外観でかっこいい!!このような外観はリブランのエコヴィレッジシリーズでもよく見かけます!

同じくプレイス!2棟構成で、なんと全部屋が角部屋です!

次はザ・パークハウス国分寺緑邸!こちらもタイル貼りメインでかっこいいのですが、やはり建物内部に入って背中側の広大な緑地を見てみたいです!!マンションに入ってから共用廊下とラウンジで自然を味わえるのってとても魅力的だと思います!家を出るとき、家に着くとき、自然と緑が見えて癒しをくれる。素敵だと思います!

プレイスと緑邸のモデルルームです!緑邸の現物が早く見たい。。。

次はプラウド国分寺です!ちょうど東京経済大学の学生さんが一斉に帰宅しており道が混雑していました。ものすごい人数が駅に向かって歩いていくのですが、ガソリンスタンドのところでは大学側で警備員を配置して学生さんに広がって歩かないように声かけしていました。おそらくガソリンスタンドの車の出入りに影響がでないようにしているのでしょう。

プラウドらしい外観です!こちらも完成後に見てみたいですね~。

建築看板です。竣工は平成28年9月の予定です。

最後に再開発中の北口エリア、シティタワー国分寺ザツインの前で女子高生さんに取材をしました!当日は大学のキャンパスを見学するために国分寺に訪れたそうで、大学内に入ってみたものの大学生が多すぎて緊張・・長い時間いることができなかったと話していました。たしかに高校生からすると大学生って大人に感じるんですよね~。マンマニも高校生の頃は大学生って大人だなぁと感じていましたし、ましてや30代ともなると果てしないくらい人生の先輩と感じていましたが自分が30代になってみるとまだまだ未熟です。確実に進化したのはマンションを見る目とマンションを好きな情熱くらいです(笑) とはいえまだまだ勉強中の身です!マンション評論家にゴールはありません!

話を戻して・・・立川に住んでいるため国分寺駅はいつも通りはするけどあまり降りたことがないという彼女。たしかに沿線の方が買い物をするならば立川、吉祥寺がありますから国分寺で降りるということは少ないかもしれません。しかし、駅ビルもありますし北口の再開発が完成すればもっと便利になります。中央線沿線で住まい探しをしている方は立川と吉祥寺に挟まれた緑豊かな街「国分寺」の駅近マンションという選択も検討してみてはいかがでしょうか。
記事内画像出典:1~7枚目は各物件公式HP

【関連記事】
シティタワー国分寺 モデルルーム訪問
アーバンガール 国分寺×女子大生さん
【マンションマニア運営サイト】
マンションマニアの活動日記
アーバンガールbyマンションマニア
Twitter公式アカウント
マンションの売却を検討している方へ
↓マンション購入相談、売却相談、ネタ提供↓

国分寺駅はJR中央線の通勤特快、中央特快の停車駅で、通勤特快の場合は次の駅が新宿です。日中の時間帯ですと新宿駅まではたったの19分。ただ、新宿駅へ19分圏内の駅は多数あるわけで、その中ではけしてお安くない国分寺エリアですから基本的には地元需要となります。
しかしながら駅近くで4物件が供給中ともなると地元需要だけではなく地縁のない方も呼びこまなければなりません。そもそも国分寺駅の魅力とはどうのような部分なのか?駅ビルがあり、交通利便性が良く、公園、庭園があり便利なんだけども自然も豊かであるということはわかりやすい部分です。その他に注目したいのは吉祥寺と立川の間に位置していること、私立の中学高校、大学のキャンパスがあるため若者も多いことでしょうか。
そしてもう一つ注目してほしいのは国分寺駅最寄りで供給されているマンションのスペックが高いことです。比較的お財布に余裕がある地元の方の需要がメインですから「安くて普通のマンション」よりも「高くて高スペックなマンション」のほうが売れたりします。大手志向の方が多いという理由か現在供給中のマンション、すべて超大手が売主です。
それでは4つのマンションを紹介していきたいと思います!
まずはシティタワー国分寺ザツインです!売主は住友不動産です。

駅直結と文句なしの立地です。現在は第二期の販売前のため価格は未定ですが、参考までにウエストの第一期販売概要は7480万円~13880万円、56.99㎡~80.03㎡、販売戸数は70戸でした。
つづいてはザ・パークハウス国分寺プレイスです!売主は三菱地所レジデンスです。
駅徒歩3分という近さでありながら線路から離れるため静かな環境です。

国分寺レジデンスギャラリーに立ち寄り販売状況を確認したところ残り住戸は1戸とのこと。
9階 70㎡ 6598万円 坪単価311万円

竣工済みマンションですから超低金利で決め打ちできるのも魅力的です!
つづいてはザ・パークハウス国分寺緑邸です!こちらも売主は三菱地所レジデンスです。
こちらは駅徒歩4分、プレイスと違い通りを渡る必要があるため単純に駅までの利便性ではプレイスのほうが勝ります。しかしこちらの強みは物件名にもあるとおり緑豊かな場所に位置することです。

言葉で説明するよりも公式HPにある動画をぜひご覧ください。

駅近でこれだけの緑を背負っている物件はなかなかありません。こちらも販売状況を確認したところ現在は5戸を先着順で販売中とのこと。販売概要は6,498万円~7,798万円、70.31m2~77.03m2です。価格表を確認したところ未供給戸数を合わせて約30戸のようです。竣工が平成28年10月中旬ですから順調でしょうか。あとは実物を見せれるようになってからのほうが売りやすいのではないでしょうか。マンマニも背中側に背負う緑地を実際の共用廊下から見てみたいです!
最後にプラウド国分寺です!売主は野村不動産です。
駅徒歩5分ですが先ほどまで紹介したマンションと違い駅から現地までが緩い下り坂となります。

同マンションの特徴は杜を活かしたランドスケープ!7番の場所は一般の方も入れますがその先1番付近は住民専用の杜となります。それとは別に提供公園も設けますから全体を敷地として見るとゆとりがあることがわかります。

モデルルームがお休みだったため販売状況はわからず。公式HPを確認すると販売価格が未定のため参考までに第二期二次の販売概要は、6298万円~7599万円、71.13㎡~76.83㎡、販売戸数10戸でした。
最後に各現地の写真を掲載いたします!
まずはザ・パークハウス国分寺プレイス!スタイリッシュな外観でかっこいい!!このような外観はリブランのエコヴィレッジシリーズでもよく見かけます!

同じくプレイス!2棟構成で、なんと全部屋が角部屋です!

次はザ・パークハウス国分寺緑邸!こちらもタイル貼りメインでかっこいいのですが、やはり建物内部に入って背中側の広大な緑地を見てみたいです!!マンションに入ってから共用廊下とラウンジで自然を味わえるのってとても魅力的だと思います!家を出るとき、家に着くとき、自然と緑が見えて癒しをくれる。素敵だと思います!

プレイスと緑邸のモデルルームです!緑邸の現物が早く見たい。。。

次はプラウド国分寺です!ちょうど東京経済大学の学生さんが一斉に帰宅しており道が混雑していました。ものすごい人数が駅に向かって歩いていくのですが、ガソリンスタンドのところでは大学側で警備員を配置して学生さんに広がって歩かないように声かけしていました。おそらくガソリンスタンドの車の出入りに影響がでないようにしているのでしょう。

プラウドらしい外観です!こちらも完成後に見てみたいですね~。

建築看板です。竣工は平成28年9月の予定です。

最後に再開発中の北口エリア、シティタワー国分寺ザツインの前で女子高生さんに取材をしました!当日は大学のキャンパスを見学するために国分寺に訪れたそうで、大学内に入ってみたものの大学生が多すぎて緊張・・長い時間いることができなかったと話していました。たしかに高校生からすると大学生って大人に感じるんですよね~。マンマニも高校生の頃は大学生って大人だなぁと感じていましたし、ましてや30代ともなると果てしないくらい人生の先輩と感じていましたが自分が30代になってみるとまだまだ未熟です。確実に進化したのはマンションを見る目とマンションを好きな情熱くらいです(笑) とはいえまだまだ勉強中の身です!マンション評論家にゴールはありません!

話を戻して・・・立川に住んでいるため国分寺駅はいつも通りはするけどあまり降りたことがないという彼女。たしかに沿線の方が買い物をするならば立川、吉祥寺がありますから国分寺で降りるということは少ないかもしれません。しかし、駅ビルもありますし北口の再開発が完成すればもっと便利になります。中央線沿線で住まい探しをしている方は立川と吉祥寺に挟まれた緑豊かな街「国分寺」の駅近マンションという選択も検討してみてはいかがでしょうか。
記事内画像出典:1~7枚目は各物件公式HP

【関連記事】
シティタワー国分寺 モデルルーム訪問
アーバンガール 国分寺×女子大生さん
【マンションマニア運営サイト】
マンションマニアの活動日記
アーバンガールbyマンションマニア
Twitter公式アカウント
マンションの売却を検討している方へ
↓マンション購入相談、売却相談、ネタ提供↓

